Novostavba domova se zvláštním režimem - záměr č. 293
Je součástí skupiny projektů: Domov U PlovárnyRozpočet
130 000 000 Kč
Termín
říjen 2025
Priority
2.1 Sociální a zdravotní péče
Popis
Cílem města je z důvodu dlouhodobého trendu stárnutí obyvatelstva vybudovat dům pro seniory a dům se zvláštním režimem. Prozatím není jasné umístění domova ve městě. Avšak jeho potřeba je dle statistik nezpochybnitelná. Je nezbytné vybudovat zařízení alespoň o 120 lůžkách.
Město má v řešení dvě možné varianty a to situování domova v lokalitě bývalé plovárny (ulice U Plovárny) nebo v lokalitě Olšava na ulici Javořinská. Město zvažuje řešení financování a provozu formou PPP projektu (Public Private Partnership).
Roku 2020 byla vyhotovena Architektonická studie na variantu domova U Plovárny. V říjnu roku 2023 byla dále zpracována studie proveditelnosti "Domov pro seniory a domov se zvláštním režimem", která hodnotila obě možné varianty. Z hlediska stavebně-technického a časového je nejvýhodnější využití parcel v lokalitě Olšava, které nemají tak výrazný
komerční potenciál, jako lokalita U Plovárny. Dále bylo zjištěno, že nejvýhodnější bubde realizace optimalizovaného zařízení Olšava s kapacitou 70 lůžek v režimu domov pro seniory a/nebo domov se zvláštním režimem, z důvodu vysoké pravděpodobnosti zařazení této kapacity do sítě sociálních služeb Zlínského kraje.
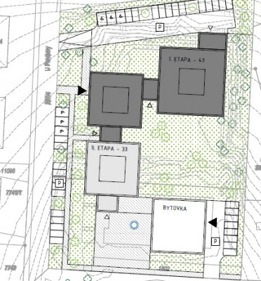
Varianta „U Plovárny“
Celkový počet lůžek pro Domov je navrhován na 65 a celkový počet lůžek na bytový dům na 14. Obestavěný prostor Domova je 20 768 m3 a bytového domu 9 820 m3.
Celkové náklady včetně bytového domu s kapaciotu 70 lůžek činí 329 mil. Kč (dle studie proveditelnosti).
Varianta „Olšava“
Bylo by vybudováno multifunkční centrum pro seniory Javořinská. Maximální počet klientů by činil 100 a počet zaměstnanců 60. Jako součást objektu je navrhována restaurace, obchod, lékárna i ordinace.
Obestavěný prostor je 20 272 m3.
Investice celkem vč. DPH (stavba, příprava, mobiliář) pro domov s kapacitou 70 / 110 lůžek: 273 / 367 mil. Kč (dle studie proveditelnosti).
Investiční záměr byl schválen Zastupitelstvem města dne 24.04.2023 (č. usnesení 84/Z5/23)
Veřejný přínos
Provedením záměru dojde pokrytí předpokládané potřeby lůžek pro seniory s vysokou mírou podpory jak na území města tak v jeho širším okolí. Bude tak zajištěna plnohodnotná a adekvátní péče o seniory v vysokou mírou podpory.
Architektonická studie - Domov U Plovárny
Duben 2020
Zpracování architektonické studie pro variantu "Domov U Plovárny"
Objemová studie - Domov u Plovárny
Květen 2021
Zpracování obejmové studie pro variantu "Domov U Plovárny"
Studie proveditelnosti - Domov pro seniory a domov se zvláštním režimem
Zpracování studie proveditelnosti "Domov pro seniory a domov se zvláštním režimem", která brala v úvahu obě navrhované varianty.